‹ Retour
À vendre

Description

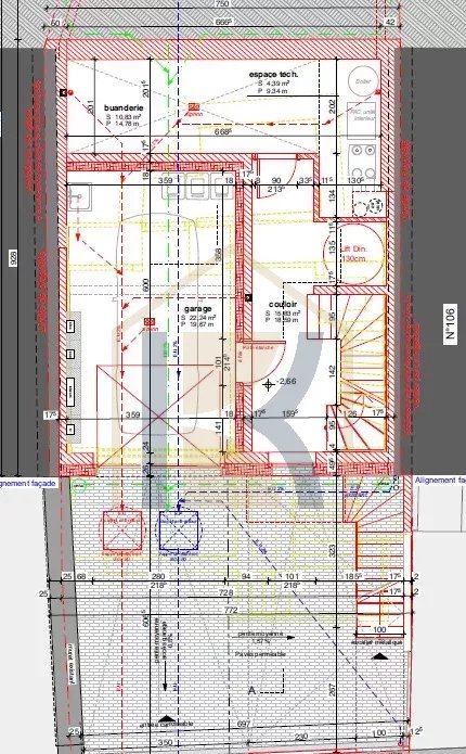
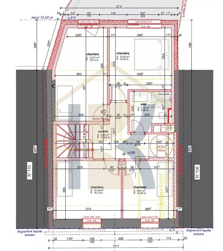
ImmoBuild Kohn a le plaisir de vous présenter cette maison unifamiliale située à Belvaux, proposée avec un projet de transformation, pensé pour offrir un cadre de vie moderne et confortable.

Une base existante est déjà en place, et un projet architectural a été élaboré afin d’optimiser les volumes et la qualité de vie.

Le bien est vendu avec les plans et autorisations, qui peuvent être adaptés selon les souhaits et besoins du futur propriétaire. Aucun contrat de construction n’est imposé, laissant une liberté totale pour les travaux.

Ce projet s’adresse avant tout à des personnes souhaitant habiter leur future maison, en bénéficiant d’une base existante et d’un concept déjà réfléchi.

Vous souhaitez visiter la maison, obtenir plus d’informations sur le projet ou échanger sur les possibilités d’adaptation ?

N’hésitez pas à nous contacter, nous serons ravis de vous accompagner dans l’étude de ce projet et de répondre à vos questions.

📞 +352 621 830 272
📧 contact@immobuild.lu
🌐 www.immobuild.lu

Caractéristiques

Pièces
14
Chambres
4
Surface habitable
170 m²
Étage
4

Intéressé par ce bien ?

Contactez-nous pour organiser une visite ou recevoir des informations complémentaires.